| 일 | 월 | 화 | 수 | 목 | 금 | 토 |
|---|---|---|---|---|---|---|
| 1 | 2 | 3 | ||||
| 4 | 5 | 6 | 7 | 8 | 9 | 10 |
| 11 | 12 | 13 | 14 | 15 | 16 | 17 |
| 18 | 19 | 20 | 21 | 22 | 23 | 24 |
| 25 | 26 | 27 | 28 | 29 | 30 | 31 |
- 용인공장경매
- 화성시공장
- 화성공장매매
- 안성공장경매
- 안산시공장경매
- 충남공장
- 공장경매전문업체
- 지방공장경매
- 충청공장경매
- 평택시공장경매
- 경기화성시공장
- 안성시공장경매
- 충남공장경매
- 평택공장경매
- 공장경매문의
- 화성공장경매
- 공장경매
- 파주시공장경매
- 화성공장임대
- 충북공장경매
- 안산공장경매
- 식품공장경매
- 공장경매전문
- 경기화성공장
- 화성시공장경매
- 경기공장경매
- 광주시공장경매
- 파주공장경매
- 용인시공장경매
- 화성공장
- Today
- Total
공장경매전문 엄미화대표
안산공장경매#세종머티리얼즈경매#반월공단경매#반월공업지역# 본문
공장경매전문 공인중개사 엄미화입니다.
오늘 추천해드릴 물건은 사건번호 2019 타경 56278 안산공장경매 물건입니다.
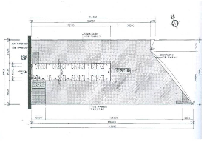
물건지 주소: 경기 안산시 단원구 성곡동 641-7 나동
[토지: 2,314평/ 건평: 2,126평]
오늘 소개해드릴 물건은 안산공장경매 입니다.
안산시 단원구 성곡동 남안산IC 남측근거리에 위치해 있으며
반월국가산업단지내에 대규모 공장지대에 소재해 있습니다.
공업지역의 토지 2,314평에 건평 2,126평으로
2006년도에 3층 공장으로 신축되었고
감정가는 14,543,718,700원으로 감정되었고 2020.4.21 1회 유찰시
최저가 10,180,603,000원으로 2020.5.26 2차 경매가 진행될예정입니다.
[공장경매전문 엄미화 010-6503-7880]

본 안산공장경매 물건의 자세한 상담을 원하시면 아래 전화번호로 연락 및 문자 주세요.
성실히 답변해드리겠습니다.
문의시 사건번호를 말씀해주시면 보다 신속한 상담을 도와드릴수 있습니다.
사건번호: 2019 타경 56278
경매전문 공인중개사 엄미화
010-6503-7880

<공장 입찰시 주의해야할점>
미납된 전기세 및 수도세등 공과금이 많이 밀려있지 않은지
입찰전에 조사후 입찰하셔야하며
현장조사시 산업폐기물등 쓰레기처리 비용 및 유치권협의비용등을
모두 감안하여 입찰금액을 정하셔야합니다.
정확한 분석은 전화주시면 자세히 상담해드리겠습니다.
공장경매 전문 중개사 엄미화
(010-6503-7880)









지금까지 안산공장경매 물건을 추천해드렸습니다.
고객님의 소중한 재산 더 늘리고 보호하는데
제가 도움 드리고자 더욱더 최선을 다해야겠다고 다짐해봅니다.
허위광고와 불법컨설팅으로 인한 피해를 막고자
인터넷과 핸드폰 모바일로 경매물건을 무료검색할수 있는
사이트를 제공하고 있으니 많이 이용하시고
문의사항 있으시면 언제든 전화주세요.
경매무료사이트 http://www.goodac.net
경매 블로그 http://blog.naver.com/mycopysvc
소중한 인연 끝까지 이어나가겠습니다.
경매전문 공인중개사 엄미화
(☎010-6503-7880)
'공장경매 > 경기권' 카테고리의 다른 글
| 파주공장경매#파주시 탄현면 축현리#파주시공장경매#축현일반산업단지#공장경매전문 (0) | 2020.04.08 |
|---|---|
| 화성공장경매#화성시 팔탄면 덕우리#대한금속볼트#화성시공장경매 (0) | 2020.04.07 |
| 화성공장경매#화성시 팔탄면 서근리#파나텍경매#화성시공장경매#화성공장 법원경매 (0) | 2020.04.01 |
| 화성공장경매#화성시 장안면 석포리#선진금속경매#화성시공장경매 (0) | 2020.03.31 |
| 용인공장경매#(주)파이로경매#용인시 처인구 양지면 용인시공장경매#용인법원경매 (0) | 2020.03.26 |