| 일 | 월 | 화 | 수 | 목 | 금 | 토 |
|---|---|---|---|---|---|---|
| 1 | ||||||
| 2 | 3 | 4 | 5 | 6 | 7 | 8 |
| 9 | 10 | 11 | 12 | 13 | 14 | 15 |
| 16 | 17 | 18 | 19 | 20 | 21 | 22 |
| 23 | 24 | 25 | 26 | 27 | 28 | 29 |
| 30 |
- 안성공장경매
- 지방공장경매
- 경기공장경매
- 파주시공장경매
- 경기화성시공장
- 평택시공장경매
- 용인공장경매
- 용인시공장경매
- 충남공장경매
- 파주공장경매
- 화성공장매매
- 광주시공장경매
- 안산공장경매
- 공장경매전문
- 공장경매
- 안산시공장경매
- 식품공장경매
- 평택공장경매
- 화성공장경매
- 안성시공장경매
- 충남공장
- 화성시공장
- 충청공장경매
- 경기화성공장
- 충북공장경매
- 화성공장임대
- 화성공장
- 공장경매문의
- 공장경매전문업체
- 화성시공장경매
- Today
- Total
공장경매전문 엄미화대표
원주시공장경매#강원공장경매#원주동화농공단지#공장경매#메디칼써프라이#공장경매전문 엄미화 <2019 타경 500170> 본문
원주시공장경매#강원공장경매#원주동화농공단지#공장경매#메디칼써프라이#공장경매전문 엄미화 <2019 타경 500170>
공장경매 전문 엄미화 2020. 2. 10. 08:21
공장경매전문 공인중개사 엄미화입니다.
오늘 추천해드릴 물건은 사건번호 2019 타경 500170 원주시공장경매 물건입니다.
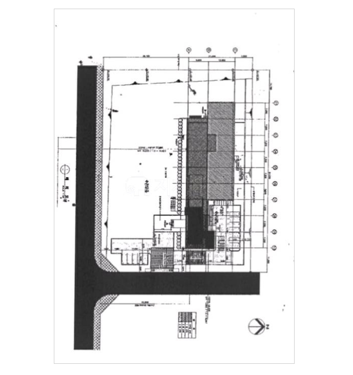
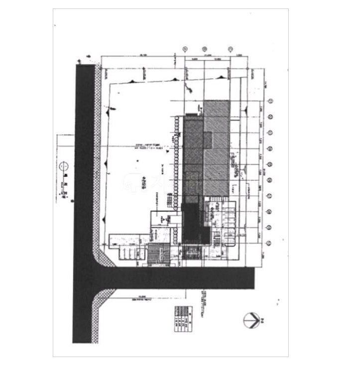
물건지 주소: 강원 원주시 문막읍 동화리 1647-3
[토지: 1,828평/ 건평: 738평]
오늘 소개해드릴 물건은 원주시공장경매 입니다.
강원 원주시 문막읍 동화리 동화농공단지내에 위치해 있으며
주위는 공장이 밀집되어 있으며
일반공업지역의 토지 1,828평에 건평 738평으로
3층 공장으로 건축되었습니다.
감정가는 2,868,931,350원으로 감정되었고 2회 유찰되어
최저가 1,405,776,000원으로 2020.3.2 3차 경매가 진행될예정입니다.
[공장경매전문 엄미화 010-6503-7880]

본 원주시공장경매 물건의 자세한 상담을 원하시면 아래 전화번호로 연락 및 문자 주세요.
성실히 답변해드리겠습니다.
문의시 사건번호를 말씀해주시면 보다 신속한 상담을 도와드릴수 있습니다.
사건번호: 2019 타경 500170
경매전문 공인중개사 엄미화
010-6503-7880

<공장 입찰시 주의해야할점>
미납된 전기세 및 수도세등 공과금이 많이 밀려있지 않은지
입찰전에 조사후 입찰하셔야하며
현장조사시 산업폐기물등 쓰레기처리 비용 및 유치권협의비용등을
모두 감안하여 입찰금액을 정하셔야합니다.
정확한 분석은 전화주시면 자세히 상담해드리겠습니다.
공장경매 전문 중개사 엄미화
(010-6503-7880)





지금까지 원주시공장경매 물건을 추천해드렸습니다.
고객님의 소중한 재산 더 늘리고 보호하는데
제가 도움 드리고자 더욱더 최선을 다해야겠다고 다짐해봅니다.
허위광고와 불법컨설팅으로 인한 피해를 막고자
인터넷과 핸드폰 모바일로 경매물건을 무료검색할수 있는
사이트를 제공하고 있으니 많이 이용하시고
문의사항 있으시면 언제든 전화주세요.
경매무료사이트 http://www.goodac.net
경매 블로그 http://blog.naver.com/mycopysvc
소중한 인연 끝까지 이어나가겠습니다.
경매전문 공인중개사 엄미화
(☎010-6503-7880)
'공장경매 > 강원도' 카테고리의 다른 글
| 횡성공장경매#강원도공장경매#강성바이오(주)#공장경매전문# (0) | 2020.02.28 |
|---|---|
| 강원공장경매#강원 횡성군 공근면 초원리#공근농공단지#공장경매전문 엄미화 <2019 타경 500552> (0) | 2020.02.11 |
| 강원식품공장경매#강원 양구군 남면#내몸애푸드#식품공장경매#공장경매전문 엄미화 <2019 타경 3376> (0) | 2020.02.06 |
| 원주공장경매#도로변공장#원 원주시 소초면 흥양교차로인근#강원도공장경매 *공장경매전문 엄미화 <2017 타경 4678> (0) | 2019.07.17 |
| 강원식품공장경매#정선군식품공장경매#(주)아리랑푸드#강원정선공장경매#증산농공단지 [토지:2,851평/ 건평:433평] 공장경매전문 엄미화 (0) | 2019.06.20 |