| 일 | 월 | 화 | 수 | 목 | 금 | 토 |
|---|---|---|---|---|---|---|
| 1 | 2 | 3 | ||||
| 4 | 5 | 6 | 7 | 8 | 9 | 10 |
| 11 | 12 | 13 | 14 | 15 | 16 | 17 |
| 18 | 19 | 20 | 21 | 22 | 23 | 24 |
| 25 | 26 | 27 | 28 | 29 | 30 | 31 |
- 안산시공장경매
- 공장경매문의
- 파주공장경매
- 지방공장경매
- 경기화성공장
- 충북공장경매
- 평택시공장경매
- 화성공장임대
- 경기공장경매
- 화성공장매매
- 충청공장경매
- 광주시공장경매
- 화성시공장경매
- 식품공장경매
- 충남공장
- 안산공장경매
- 용인시공장경매
- 평택공장경매
- 화성시공장
- 경기화성시공장
- 공장경매
- 안성공장경매
- 화성공장
- 파주시공장경매
- 화성공장경매
- 용인공장경매
- 충남공장경매
- 안성시공장경매
- 공장경매전문업체
- 공장경매전문
- Today
- Total
공장경매전문 엄미화대표
인천공장경매#2011년신축#인천건물경매#인천 미추홀구 도화동 <엄미화 대표> 2019 타경 2133 본문
공장경매전문 공인중개사 엄미화입니다.
오늘 추천해드릴 물건은 사건번호 2019 타경 2133 인천공장경매 물건입니다.
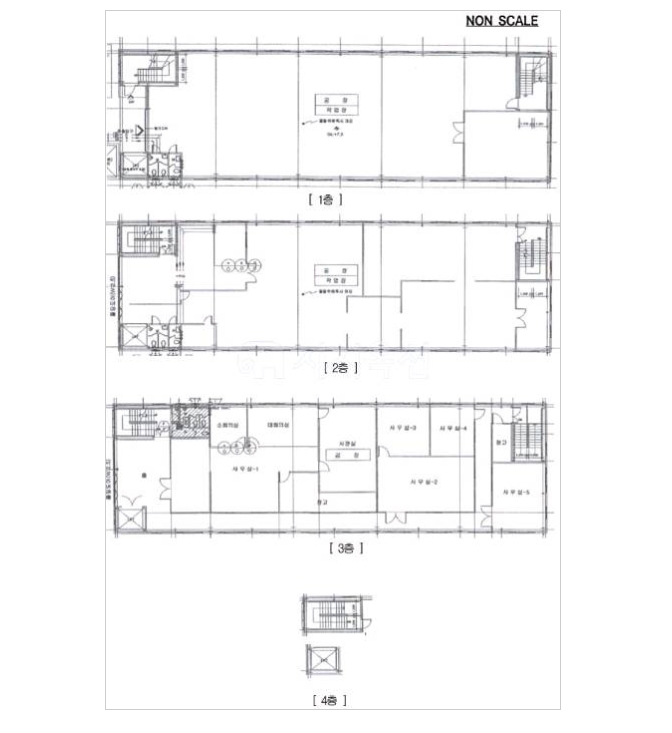
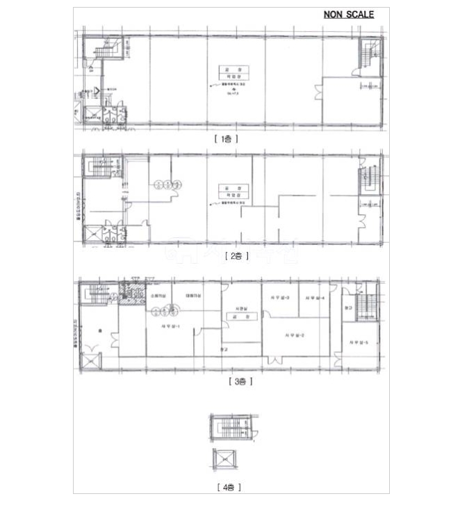
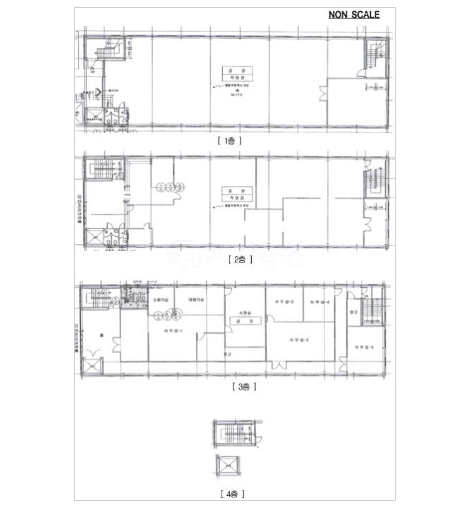
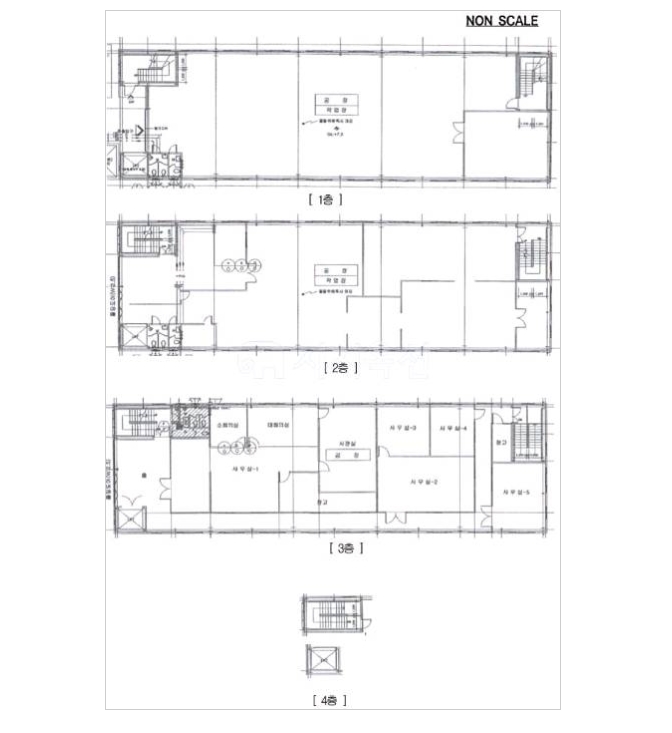
물건지 주소: 인천 미추홀구 도화동 708-2
[토지: 200평/ 건평: 447평]
오늘 소개해드릴 물건은 인천공장경매 물건으로
인천 미추홀구 도화동 인천비지니스 고등학교 북동측인근에 위치해 있으며
주위는 중소규모공장, 아파트, 근린생활시설등이 소재한 산업단지입니다.
공업지역의 토지 200평에 건평 447평으로
2011년도에 4층 공장으로 신축되었고
1층공장 바닥면적은 146평 입니다.
감정가는 2,032,511,720원으로 감정되었고 1회 유찰되어
최저가 1,422,758,000원으로 2019.10.21 2차 경매가 진행될예정입니다.
[공장경매전문 엄미화 010-6503-7880]



본 인천공장경매 물건의 자세한 상담을 원하시면 아래 전화번호로 연락 및 문자 주세요.
성실히 답변해드리겠습니다.
문의시 사건번호를 말씀해주시면 보다 신속한 상담을 도와드릴수 있습니다.
사건번호: 2019 타경 2133
경매전문 공인중개사 엄미화
010-6503-7880

<공장 입찰시 주의해야할점>
미납된 전기세 및 수도세등 공과금이 많이 밀려있지 않은지
입찰전에 조사후 입찰하셔야하며
현장조사시 산업폐기물등 쓰레기처리 비용 및 유치권협의비용등을
모두 감안하여 입찰금액을 정하셔야합니다.
정확한 분석은 전화주시면 자세히 상담해드리겠습니다.
공장경매 전문 중개사 엄미화
(010-6503-7880)




지금까지 인천공장경매 물건을 추천해드렸습니다.
고객님의 소중한 재산 더 늘리고 보호하는데
제가 도움 드리고자 더욱더 최선을 다해야겠다고 다짐해봅니다.
허위광고와 불법컨설팅으로 인한 피해를 막고자
인터넷과 핸드폰 모바일로 경매물건을 무료검색할수 있는
사이트를 제공하고 있으니 많이 이용하시고
문의사항 있으시면 언제든 전화주세요.
경매무료사이트 http://www.goodac.net
경매 블로그 http://blog.naver.com/mycopysvc
소중한 인연 끝까지 이어나가겠습니다.
경매전문 공인중개사 엄미화
(☎010-6503-7880)
'공장경매 > 광역시' 카테고리의 다른 글
| 인천공장경매#인천시 남동구 고잔동#(주)ITC#인천남동공업단지#공장경매전문 엄미화 <2019 타경 502497> (0) | 2019.11.18 |
|---|---|
| 대전공장부지경매#대전죽동국가산업단지 토지#대전공장토지경매#대전시 땅경매 *공장경매전문 엄미화 <2019 타경 4335> (0) | 2019.11.05 |
| 부평공장경매#인천식품공장경매#부평식품공장경매#부평구공장경매#공장경매전문 엄미화 <2018 타경 21052> (0) | 2019.10.01 |
| 대전공장경매#대전식품공장경매#냉장,냉동창고포함# (주)이지글로벌푸드 (0) | 2018.07.03 |
| 인천아파트형공장# 인천가좌동공장# 인천시 서구 가좌동 파란들 지식산업센타 ★공장경매전문 엄미화 <2017 타경 1372> (0) | 2018.01.03 |