| 일 | 월 | 화 | 수 | 목 | 금 | 토 |
|---|---|---|---|---|---|---|
| 1 | 2 | 3 | ||||
| 4 | 5 | 6 | 7 | 8 | 9 | 10 |
| 11 | 12 | 13 | 14 | 15 | 16 | 17 |
| 18 | 19 | 20 | 21 | 22 | 23 | 24 |
| 25 | 26 | 27 | 28 | 29 | 30 | 31 |
- 화성공장
- 경기화성공장
- 공장경매전문업체
- 안산공장경매
- 공장경매전문
- 화성공장임대
- 화성공장경매
- 충북공장경매
- 용인공장경매
- 공장경매
- 경기공장경매
- 평택시공장경매
- 안산시공장경매
- 지방공장경매
- 평택공장경매
- 화성공장매매
- 안성시공장경매
- 파주시공장경매
- 화성시공장
- 용인시공장경매
- 안성공장경매
- 화성시공장경매
- 광주시공장경매
- 충청공장경매
- 경기화성시공장
- 충남공장경매
- 식품공장경매
- 충남공장
- 파주공장경매
- 공장경매문의
- Today
- Total
공장경매전문 엄미화대표
천안공장경매#충남 천안시 서북구 직산읍#천안마정산업단지공장#가진테크#공장경매전문 엄미화 <2018 타경 104220> 본문
천안공장경매#충남 천안시 서북구 직산읍#천안마정산업단지공장#가진테크#공장경매전문 엄미화 <2018 타경 104220>
공장경매 전문 엄미화 2019. 10. 11. 08:26공장경매전문 공인중개사 엄미화입니다.
오늘 추천해드릴 물건은 사건번호 2018 타경 104220 천안공장경매 물건입니다.
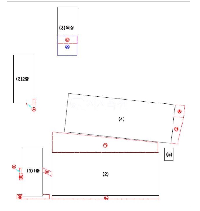
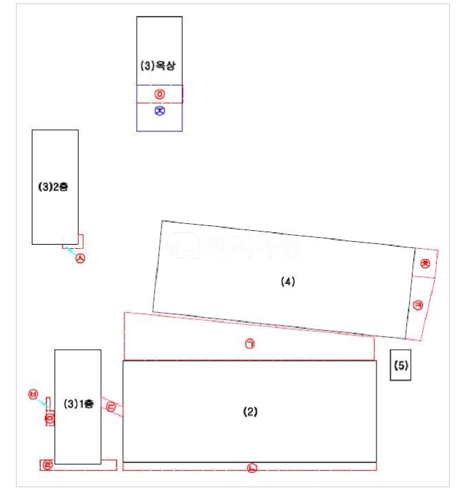
물건지 주소: 충남 천안시 서북구 직산읍 마정리 530 1동,2동,3동,4동
[토지: 1,152평/ 건평: 898평]
오늘 소개해드릴 물건은 천안공장경매 물건으로
천안시 서북구 직산읍 마정리 천안마정기계일반산업단지내에 위치해 있으며
주위는 중소규공장등이 혼재되어 있습니다.
북서측으로 15m 도로에 접해 있고,
공업지역의 토지 1,152평에 건평 898평으로
1997평에 1층 여러동으로 신축되었습니다.
감정가는 3,254,692,950원으로 감정되었고 2회 유찰되어 반값
최저가 1,594,800,000원으로 2019.10.21 3차 경매가 진행될예정입니다.
[공장경매전문 엄미화 010-6503-7880]


본 천안공장경매 물건의 자세한 상담을 원하시면 아래 전화번호로 연락 및 문자 주세요.
성실히 답변해드리겠습니다.
문의시 사건번호를 말씀해주시면 보다 신속한 상담을 도와드릴수 있습니다.
사건번호: 2018 타경 104220
경매전문 공인중개사 엄미화
010-6503-7880


<공장 입찰시 주의해야할점>
미납된 전기세 및 수도세등 공과금이 많이 밀려있지 않은지
입찰전에 조사후 입찰하셔야하며
현장조사시 산업폐기물등 쓰레기처리 비용 및 유치권협의비용등을
모두 감안하여 입찰금액을 정하셔야합니다.
정확한 분석은 전화주시면 자세히 상담해드리겠습니다.
공장경매 전문 중개사 엄미화
(010-6503-7880)






지금까지 천안공장경매 물건을 추천해드렸습니다.
고객님의 소중한 재산 더 늘리고 보호하는데
제가 도움 드리고자 더욱더 최선을 다해야겠다고 다짐해봅니다.
허위광고와 불법컨설팅으로 인한 피해를 막고자
인터넷과 핸드폰 모바일로 경매물건을 무료검색할수 있는
사이트를 제공하고 있으니 많이 이용하시고
문의사항 있으시면 언제든 전화주세요.
경매무료사이트 http://www.goodac.net
경매 블로그 http://blog.naver.com/mycopysvc
소중한 인연 끝까지 이어나가겠습니다.
경매전문 공인중개사 엄미화
(☎010-6503-7880)
'공장경매 > 충청권' 카테고리의 다른 글
| 충북식품공장경매#메시푸드공장경매#식품공장경매#음성군 생극면#공장경매전문 엄미화 <2019 타경 31135> (0) | 2019.10.29 |
|---|---|
| 충북공장경매#충북 음성군 금왕읍 유촌리#(주)팟팟경매#공장경매전문 엄미화 <2019 타경 1356> (0) | 2019.10.28 |
| 충남공장경매#충남 금산군 하신리#금산금성농공단지#금산면공장경매#공장경매전문 엄미화 <2018 타경 102508> (0) | 2019.10.10 |
| 논산공장경매#충남 논산시 채운면#논산시공장경매#충남공장경매#공장경매전문 엄미화 <2019 타경 20173> (0) | 2019.10.10 |
| 천안공장경매#충남 천안시 서북구 성환읍#2017년신축공장#백산실업#천안시공장매매#공장경매전문 엄미화 <2018 타경 106356[2]> (0) | 2019.10.08 |