| 일 | 월 | 화 | 수 | 목 | 금 | 토 | 
|---|---|---|---|---|---|---|
| 1 | 2 | 3 | 4 | |||
| 5 | 6 | 7 | 8 | 9 | 10 | 11 | 
| 12 | 13 | 14 | 15 | 16 | 17 | 18 | 
| 19 | 20 | 21 | 22 | 23 | 24 | 25 | 
| 26 | 27 | 28 | 29 | 30 | 31 | 
- 충북공장경매
- 파주시공장경매
- 공장경매문의
- 평택시공장경매
- 용인공장경매
- 안산공장경매
- 충청공장경매
- 경기공장경매
- 화성공장임대
- 경기화성공장
- 안성공장경매
- 공장경매전문
- 파주공장경매
- 지방공장경매
- 충남공장경매
- 화성공장경매
- 안성시공장경매
- 식품공장경매
- 공장경매전문업체
- 경기화성시공장
- 화성시공장
- 평택공장경매
- 공장경매
- 충남공장
- 화성공장매매
- 용인시공장경매
- 안산시공장경매
- 광주시공장경매
- 화성공장
- 화성시공장경매
- Today
- Total
공장경매전문 엄미화대표
충북공장경매 충북 괴산군 괴산일반산업단지 공장용지 3,793평 본문
충북공장경매 충북 괴산군 괴산일반산업단지 공장용지 3,793평

공장경매전문 공인중개사 엄미화입니다..
오늘 추천해 드릴 물건은 사건번호 2024 타경 58292 충북공장경매 물건입니다..
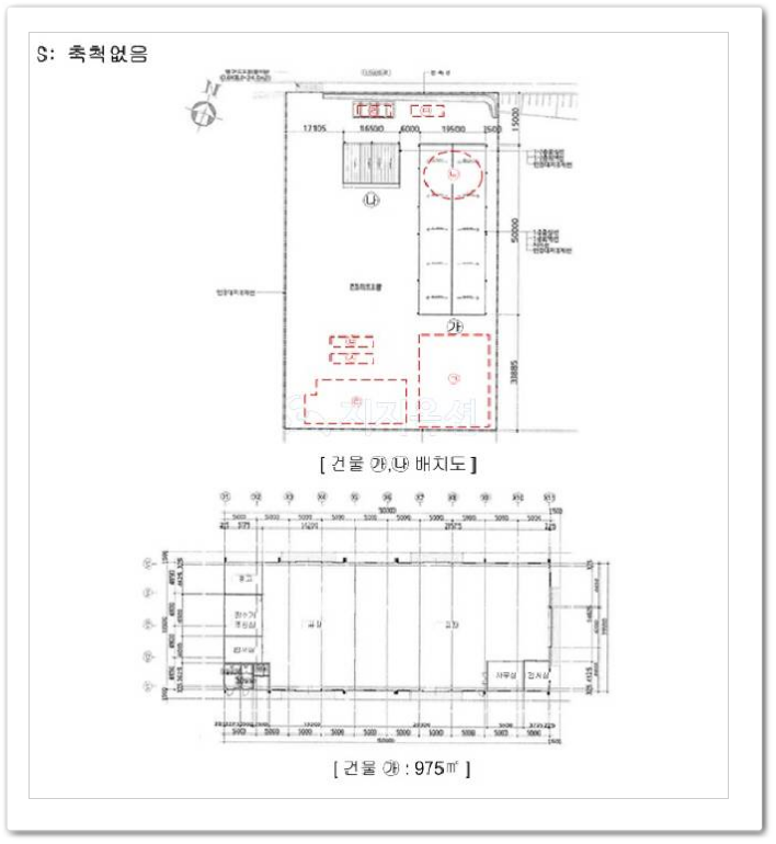
물건지 주소 : 충북 괴산군 괴산읍 제월리 903-2 1동
[토지 : 3,793 평 / 건평 : 560 평 ]
감정가: 3,051,774,900
최저가: 2,441,420,000
매각기일: 2025.5.29

충북공장경매 물건의 자세한 상담을 원하시면 아래 전화번호로 연락 및 문자 주세요.
성실히 답변해 드리겠습니다..
문의 시 사건번호를 말씀해 주시면 보다 신속한 상담을 도와드릴 수 있습니다.
사건번호: 2024 타경 58292
공장경매전문 공인중개사
010-6503-7880




<공장경매 입찰 시 주의사항>
공장경매는 특수물건으로 입찰 시 주의해야 할 점이 많습니다 장기 미납된 전기료 혹은 수도세 등의 공과금은 입찰 전에 조사 후에 입찰하셔야 합니다 또한 예상치 못한 산업 폐기물등의 쓰레기처리 비용은 상상할 수 없을 만큼 큰 비용이 추가되는 경우도 빈번히 발생하므로 주의를 기울이셔야 합니다 공사대금등을 받지 못하고 행사하는 유치권행사도 법적 근거를 바탕으로 현명하게 대처하여야만 추가 발생할 수 있는 위험에서 나의 재산을 보호할 수 있습니다.
정확한 분석을 원하신다면 전화로 문의해 주세요..
공장경매전문 공인중개사 엄미화
(010-6503-7880)
아래 그림을 클릭하시면 바로 전화로 연결됩니다.
지금까지 충북공장경매 물건을 추천해 드렸습니다.
고객님의 소중한 재산 더 늘리고 보호하는데
제가 도움드리고자 더욱더 최선을 다하겠습니다.
문의사항 있으시면 언제든 전화 주세요.
소중한 인연 끝까지 이어나가겠습니다.
공장경매전문업체
경매전문 공인중개사 엄미화
(☎010-6503-7880)
'공장경매 > 충청권' 카테고리의 다른 글
| 충남공장경매 충남 당진시 공장경매전문 2023타경52824 (0) | 2025.05.08 | 
|---|---|
| 서산공장경매 충남 서산시 해미면 공장토지 4,873평 (0) | 2025.05.07 | 
| 아산시공장경매 충남 아산시 인주면 공장경매전문 2024타경113423 (0) | 2025.04.24 | 
| 충북공장경매 충북 괴산군 공장경매전문 공장토지 6,630평 (0) | 2025.04.23 | 
| 천안시공장경매 충남 천안시 서북구 공장경매전문 2024타경3397(1) (0) | 2025.04.18 | 





 
									 
									 
									