| 일 | 월 | 화 | 수 | 목 | 금 | 토 |
|---|---|---|---|---|---|---|
| 1 | 2 | 3 | 4 | 5 | 6 | 7 |
| 8 | 9 | 10 | 11 | 12 | 13 | 14 |
| 15 | 16 | 17 | 18 | 19 | 20 | 21 |
| 22 | 23 | 24 | 25 | 26 | 27 | 28 |
| 29 | 30 | 31 |
- 화성공장
- 경기공장경매
- 지방공장경매
- 파주공장경매
- 안산공장경매
- 안성시공장경매
- 공장경매
- 화성시공장
- 공장경매전문업체
- 화성공장경매
- 경기화성시공장
- 충남공장
- 충북공장경매
- 용인공장경매
- 용인시공장경매
- 화성공장임대
- 광주시공장경매
- 파주시공장경매
- 화성공장매매
- 공장경매문의
- 공장경매전문
- 경기화성공장
- 충청공장경매
- 안성공장경매
- 안산시공장경매
- 화성시공장경매
- 평택시공장경매
- 평택공장경매
- 식품공장경매
- 충남공장경매
- Today
- Total
공장경매전문 엄미화대표
화성공장경매$화성시 장안면 석포리#화성공장매매#화성시공장경매 본문
공장경매전문 공인중개사 엄미화입니다.
오늘 추천해드릴 물건은 사건번호 2020 타경 4415 화성공장경매 물건입니다.
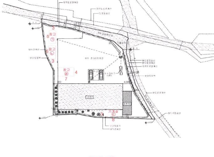
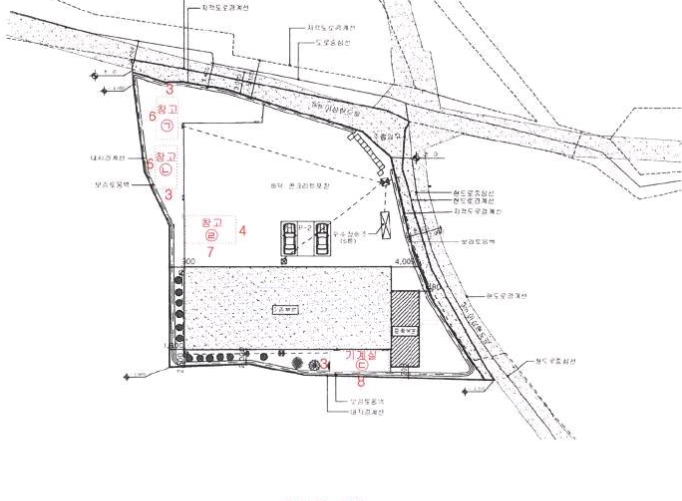
물건지 주소: 경기 화성시 장안면 석포리 59-4 1동
[토지: 458평 건평: 153평]
오늘 소개드릴 물건은 화성공장경매 입니다.
화성시 장안면 석포리 조암교차로 남동측인근에 위치해 있으며
주위는 임야, 농경지,공장등이 혼재되어 있습니다.
계획관리지역의 토지 458평에 건평 153평으로
2016년 2층으로 증축된 공장입니다.
감정가 867,373,280원으로 감정되었고 1회 유찰되어
최저가 607,161,000원으로 2021.1.20 2차 경매가 진행될예정입니다.
[공장경매전문 엄미화 010-6503-7880]

본 화성공장경매 물건의 자세한 상담을 원하시면 아래 전화번호로 연락 및 문자 주세요.
성실히 답변해드리겠습니다.
문의시 사건번호를 말씀해주시면 보다 신속한 상담을 도와드릴수 있습니다.
사건번호: 2020 타경 4415
경매전문 공인중개사 엄미화
010-6503-7880

<공장 입찰시 주의해야할점>
미납된 전기세 및 수도세등 공과금이 많이 밀려있지 않은지
입찰전에 조사후 입찰하셔야하며
현장조사시 산업폐기물등 쓰레기처리 비용 및 유치권협의비용등을
모두 감안하여 입찰금액을 정하셔야합니다.
정확한 분석은 전화주시면 자세히 상담해드리겠습니다.
공장경매 전문 중개사 엄미화
(010-6503-7880)





지금까지 화성공장경매 물건을 추천해드렸습니다.
고객님의 소중한 재산 더 늘리고 보호하는데
제가 도움 드리고자 더욱더 최선을 다해야겠다고 다짐해봅니다.
허위광고와 불법컨설팅으로 인한 피해를 막고자
인터넷과 핸드폰 모바일로 경매물건을 무료검색할수 있는
사이트를 제공하고 있으니 많이 이용하시고
문의사항 있으시면 언제든 전화주세요.
경매무료사이트 http://www.goodac.net
경매 블로그 http://blog.naver.com/mycopysvc
소중한 인연 끝까지 이어나가겠습니다.
경매전문 공인중개사 엄미화
(☎010-6503-7880)
'공장경매 > 경기권' 카테고리의 다른 글
| 천안공장경매#충남 천안시 서북구#충남공장법원경매#천안일반산업단지 (0) | 2021.01.04 |
|---|---|
| 화성공장매매#화성공장임대#화성공장경매#향남공장경매#향남읍 백토리 (0) | 2021.01.01 |
| 화성공장경매#화성시 서신면 상안리#화성공장매매#화성시공장경매#화성공장매매#공장경매전문 (0) | 2020.12.30 |
| 화성공장경매#화성시 마도면 석교리#화성시공장경매$화성공장매매 화성공장 법원경매 (0) | 2020.12.29 |
| 화성공장경매#화성시 서신면 송교리#화성공장법원경매#화성시공장경매#수원법원공장경매 2019 타경 16559 (0) | 2020.12.28 |