용인공장경매#용인창고경매#용인시 처인구 양지면#용인공장임대#용인공장매매
공장경매전문 공인중개사 엄미화입니다.
오늘 추천해드릴 물건은 사건번호 2020 타경 5210 용인공장경매 물건입니다.
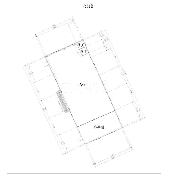
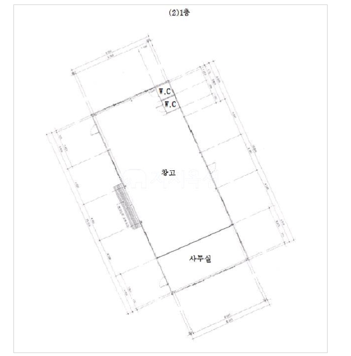
물건지 주소: 경기 용인시 처인구 양지면 양지리 279
[토지: 898평/ 건평: 159평]
오늘 소개해드릴 물건은 용인공장경매 물건으로
용인시 처인구 양지면 양지리에 소재해 있으며
주위에 영동고속도로 양지IC가 소재해 있습니다.
서측 진입도로 6M 접해 있고 자연녹지지역의 토지 898평에
건평 159평으로 2010년 1층 공장으로 신축되었습니다.
감정가는 2,005,418,400원으로 감정되었고 2021.2.5 1회 유찰시
최저가 1,403,793,000원으로 2021.3.18 2차 경매가 진행될예정입니다.
[공장경매전문 엄미화 010-6503-7880]

본 용인공장경매 물건의 자세한 상담을 원하시면 아래 전화번호로 연락 및 문자 주세요.
성실히 답변해드리겠습니다.
문의시 사건번호를 말씀해주시면 보다 신속한 상담을 도와드릴수 있습니다.
사건번호: 2020 타경 5210
경매전문 공인중개사 엄미화
010-6503-7880

<공장 입찰시 주의해야할점>
미납된 전기세 및 수도세등 공과금이 많이 밀려있지 않은지
입찰전에 조사후 입찰하셔야하며
현장조사시 산업폐기물등 쓰레기처리 비용 및 유치권협의비용등을
모두 감안하여 입찰금액을 정하셔야합니다.
정확한 분석은 전화주시면 자세히 상담해드리겠습니다.
공장경매 전문 중개사 엄미화
(010-6503-7880)






지금까지 용인공장경매 물건을 추천해드렸습니다.
고객님의 소중한 재산 더 늘리고 보호하는데
제가 도움 드리고자 더욱더 최선을 다해야겠다고 다짐해봅니다.
허위광고와 불법컨설팅으로 인한 피해를 막고자
인터넷과 핸드폰 모바일로 경매물건을 무료검색할수 있는
사이트를 제공하고 있으니 많이 이용하시고
문의사항 있으시면 언제든 전화주세요.
경매무료사이트 http://www.goodac.net
경매 블로그 http://blog.naver.com/mycopysvc
소중한 인연 끝까지 이어나가겠습니다.
경매전문 공인중개사 엄미화
(☎010-6503-7880)