충북공장경매 충북 괴산군 괴산일반산업단지 공장용지 3,793평
충북공장경매 충북 괴산군 괴산일반산업단지 공장용지 3,793평

공장경매전문 공인중개사 엄미화입니다..
오늘 추천해 드릴 물건은 사건번호 2024 타경 58292 충북공장경매 물건입니다..
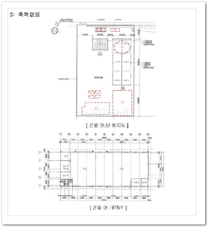
물건지 주소 : 충북 괴산군 괴산읍 제월리 903-2 1동
[토지 : 3,793 평 / 건평 : 560 평 ]
감정가: 3,051,774,900
최저가: 2,441,420,000
매각기일: 2025.5.29

충북공장경매 물건의 자세한 상담을 원하시면 아래 전화번호로 연락 및 문자 주세요.
성실히 답변해 드리겠습니다..
문의 시 사건번호를 말씀해 주시면 보다 신속한 상담을 도와드릴 수 있습니다.
사건번호: 2024 타경 58292
공장경매전문 공인중개사
010-6503-7880




<공장경매 입찰 시 주의사항>
공장경매는 특수물건으로 입찰 시 주의해야 할 점이 많습니다 장기 미납된 전기료 혹은 수도세 등의 공과금은 입찰 전에 조사 후에 입찰하셔야 합니다 또한 예상치 못한 산업 폐기물등의 쓰레기처리 비용은 상상할 수 없을 만큼 큰 비용이 추가되는 경우도 빈번히 발생하므로 주의를 기울이셔야 합니다 공사대금등을 받지 못하고 행사하는 유치권행사도 법적 근거를 바탕으로 현명하게 대처하여야만 추가 발생할 수 있는 위험에서 나의 재산을 보호할 수 있습니다.
정확한 분석을 원하신다면 전화로 문의해 주세요..
공장경매전문 공인중개사 엄미화
(010-6503-7880)
아래 그림을 클릭하시면 바로 전화로 연결됩니다.
지금까지 충북공장경매 물건을 추천해 드렸습니다.
고객님의 소중한 재산 더 늘리고 보호하는데
제가 도움드리고자 더욱더 최선을 다하겠습니다.
문의사항 있으시면 언제든 전화 주세요.
소중한 인연 끝까지 이어나가겠습니다.
공장경매전문업체
경매전문 공인중개사 엄미화
(☎010-6503-7880)




