화성공장경매#(주)티삼스#화성시 팔탄면 노하리#토지:1,975평/ 건평: 842평#공장경매전문 엄미화 <2018 타경 9677>
공장경매전문 공인중개사 엄미화입니다.
오늘 추천해드릴 물건은 사건번호 2018 타경 9677 화성공장경매 물건입니다.
물건지 주소: 경기 화성시 팔탄면 노하리 174 1동, 2동, 3동
[토지: 1,975평/ 건평: 842평]
오늘 소개해드릴 물건은 "화성공장경매"물건으로
화성시 팔탄면 노하리 팔탄초등학교 대방분교장 서측인근에 위치해 있습니다.
주위는 중소규모공장,근린생활시설등이 혼재되어 있는 지역이며
남동측으로 왕복 2차선 도로에 각각 접해 있습니다.
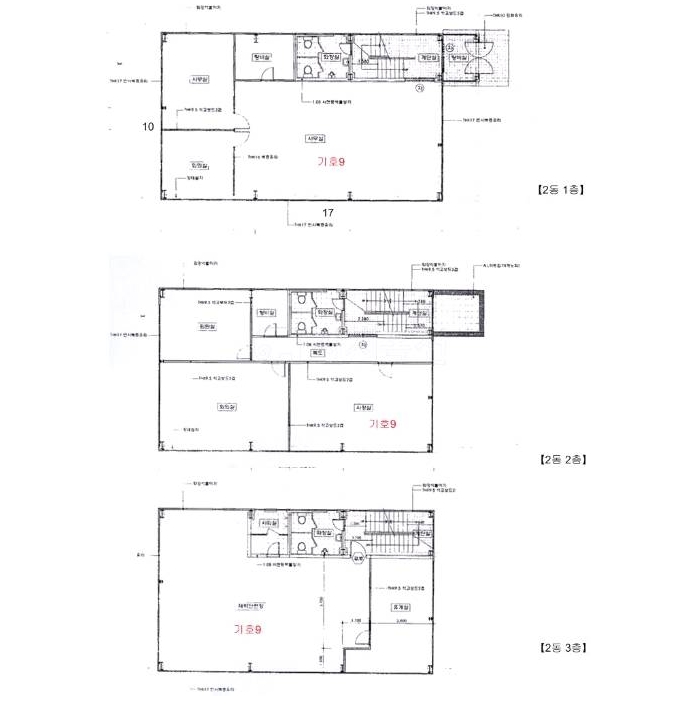
(주)티삼스가 소유한 공장으로 계획관리지역의 토지 1,975평에 평 842평으로
2009년도에 3개동으로 건축하였습니다.
1동 바닥면적은 400평으로 2층은 23평의 사무실이 있으며
기계기구3식, 수변전설비, 바닥포장, 철재담장,수목,배수흄관,석축등이 포함되어 있습니다.
4층 사무동이 별도로 있슴.
감정가는 4,326,669,450원으로 감정되었고 2019.6.20 1회 유찰시
최저가 3,028,669,000원으로 2019.8.7 2차 경매가 진행될예정입니다.
토지의 감정가가 32억으로 감정된것으로 비추어 볼때
토지가격보다 저렴한 금액으로 입찰이 가능한 물건입니다.
[공장경매전문 엄미화 010-6503-7880]

<화성공장경매>
사건번호: 2018 타경 9677
감정가: 4,326,669,450
최저가: 3,028,669,000
매각기일: 2019.8.7
주소: 경기 화성시 팔탄면 노하리 174 1동, 2동, 3동
[토지: 1,975평/ 건평: 842평]
[공장경매전문 엄미화 010-6503-7880]

본 화성공장경매 물건의 자세한 상담을 원하시면 아래 전화번호로 연락 및 문자 주세요.
성실히 답변해드리겠습니다.
문의시 사건번호를 말씀해주시면 보다 신속한 상담을 도와드릴수 있습니다.
사건번호: 2018 타경 9677
공장경매전문 공인중개사 엄미화
010-6503-7880


<공장 입찰시 주의해야할점>
미납된 전기세 및 수도세등 공과금이 많이 밀려있지 않은지
입찰전에 조사후 입찰하셔야하며
현장조사시 산업폐기물등 쓰레기처리 비용 및 유치권협의비용등을
모두 감안하여 입찰금액을 정하셔야합니다.
정확한 분석은 전화주시면 자세히 상담해드리겠습니다.
공장경매 전문 중개사 엄미화
(010-6503-7880)









지금까지 화성공장경매 물건을 추천해드렸습니다.
고객님의 소중한 재산 더 늘리고 보호하는데
제가 도움 드리고자 더욱더 최선을 다해야겠다고 다짐해봅니다.
허위광고와 불법컨설팅으로 인한 피해를 막고자
인터넷과 핸드폰 모바일로 경매물건을 무료검색할수 있는
사이트를 제공하고 있으니 많이 이용하시고
문의사항 있으시면 언제든 전화주세요.
경매무료사이트 http://www.goodac.net
경매 블로그 http://blog.naver.com/mycopysvc
소중한 인연 끝까지 이어나가겠습니다.
경매전문 공인중개사 엄미화
(☎010-6503-7880)