| 일 | 월 | 화 | 수 | 목 | 금 | 토 |
|---|---|---|---|---|---|---|
| 1 | 2 | 3 | ||||
| 4 | 5 | 6 | 7 | 8 | 9 | 10 |
| 11 | 12 | 13 | 14 | 15 | 16 | 17 |
| 18 | 19 | 20 | 21 | 22 | 23 | 24 |
| 25 | 26 | 27 | 28 | 29 | 30 | 31 |
- 충청공장경매
- 파주공장경매
- 공장경매문의
- 안산시공장경매
- 충북공장경매
- 화성공장경매
- 경기화성공장
- 화성시공장경매
- 경기화성시공장
- 공장경매
- 용인시공장경매
- 지방공장경매
- 충남공장경매
- 공장경매전문
- 화성시공장
- 파주시공장경매
- 식품공장경매
- 안성시공장경매
- 공장경매전문업체
- 화성공장매매
- 충남공장
- 평택시공장경매
- 화성공장
- 경기공장경매
- 화성공장임대
- 용인공장경매
- 광주시공장경매
- 안산공장경매
- 평택공장경매
- 안성공장경매
- Today
- Total
공장경매전문 엄미화대표
파주공장경매#파주시 법원읍 삼방리#파주시공장경매#공장경매전문 본문
공장경매전문 공인중개사 엄미화입니다.
오늘 추천해드릴 물건은 사건번호 2017 타경 65455 파주공장경매 물건입니다.
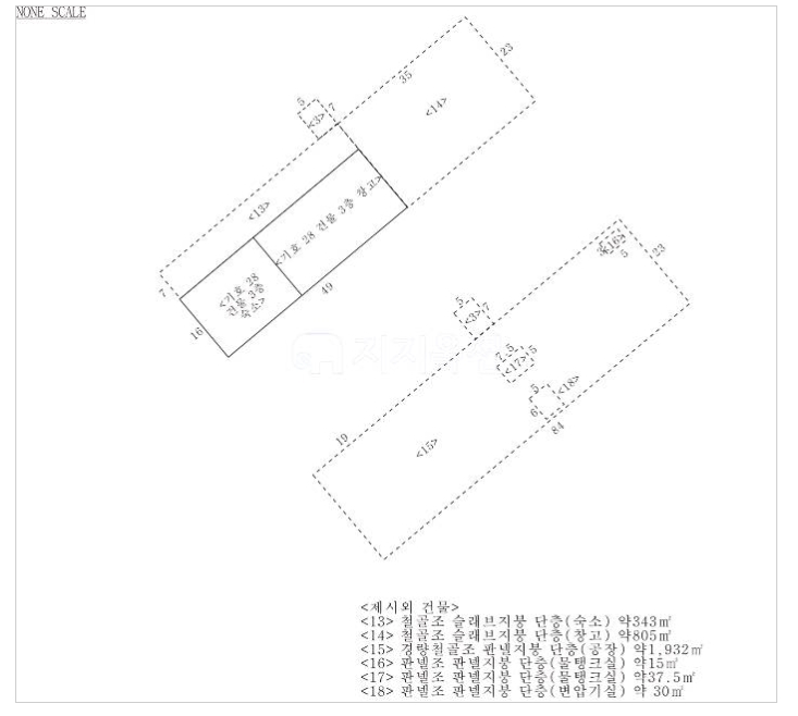
물건지 주소: 경기 파주시 법원읍 삼방리 442-2 외 여러필지
[토지: 5,728평/ 건평: 2,434평]
오늘 소개해드릴 물건은 파주공장경매입니다.
파주시 법원읍 삼방리 애룡저수지 북측인근에 위치해 있으며
주위는 농가주택, 전,답, 공장으 혼재되어 있습니다.
농림지역의 토지 5,728평에 건평 2,434평으로
1994년도에 3층 공장으로 신축되었습니다.
감정가는 5,502,967,000원으로 감정되었고 2020.4.16 1회 유찰시
최저가 3,852,077,000원으로 2020.5.20 2차 경매가 진행될예정입니다.
[공장경매 공인중개사 엄미화 010-6503-7880]

본 파주공장경매 물건의 자세한 상담을 원하시면 아래 전화번호로 연락 및 문자 주세요.
성실히 답변해드리겠습니다.
문의시 사건번호를 말씀해주시면 보다 신속한 상담을 도와드릴수 있습니다.
사건번호: 2017 타경 65455
경매전문 공인중개사 엄미화
010-6503-7880

<공장 입찰시 주의해야할점>
미납된 전기세 및 수도세등 공과금이 많이 밀려있지 않은지
입찰전에 조사후 입찰하셔야하며
현장조사시 산업폐기물등 쓰레기처리 비용 및 유치권협의비용등을
모두 감안하여 입찰금액을 정하셔야합니다.
정확한 분석은 전화주시면 자세히 상담해드리겠습니다.
공장경매 전문 중개사 엄미화
(010-6503-7880)









파주공장경매 물건을 추천해드렸습니다.
고객님의 소중한 재산 더 늘리고 보호하는데
제가 도움 드리고자 더욱더 최선을 다해야겠다고 다짐해봅니다.
허위광고와 불법컨설팅으로 인한 피해를 막고자
인터넷과 핸드폰 모바일로 경매물건을 무료검색할수 있는
사이트를 제공하고 있으니 많이 이용하시고
문의사항 있으시면 언제든 전화주세요.
경매무료사이트 http://www.goodac.net
경매 블로그 http://blog.naver.com/mycopysvc
소중한 인연 끝까지 이어나가겠습니다.
경매전문 공인중개사 엄미화
(☎010-6503-7880)
'공장경매 > 경기권' 카테고리의 다른 글
| 평택공장경매#평택시 청북읍 현곡리#평택법원경매#평택공장법원경매 (0) | 2020.04.14 |
|---|---|
| 여주식품공장경매#여주공장경매#여주시공장경매#여주신축공장#공장경매전문 (0) | 2020.04.13 |
| 파주공장경매#파주시 탄현면 축현리#파주시공장경매#축현일반산업단지#공장경매전문 (0) | 2020.04.08 |
| 화성공장경매#화성시 팔탄면 덕우리#대한금속볼트#화성시공장경매 (0) | 2020.04.07 |
| 안산공장경매#세종머티리얼즈경매#반월공단경매#반월공업지역# (0) | 2020.04.06 |