| 일 | 월 | 화 | 수 | 목 | 금 | 토 |
|---|---|---|---|---|---|---|
| 1 | 2 | 3 | ||||
| 4 | 5 | 6 | 7 | 8 | 9 | 10 |
| 11 | 12 | 13 | 14 | 15 | 16 | 17 |
| 18 | 19 | 20 | 21 | 22 | 23 | 24 |
| 25 | 26 | 27 | 28 | 29 | 30 | 31 |
- 화성공장임대
- 파주공장경매
- 안성공장경매
- 충남공장경매
- 평택공장경매
- 식품공장경매
- 용인시공장경매
- 경기공장경매
- 안성시공장경매
- 화성공장매매
- 지방공장경매
- 화성시공장
- 화성공장
- 공장경매
- 공장경매전문업체
- 공장경매문의
- 평택시공장경매
- 파주시공장경매
- 광주시공장경매
- 경기화성공장
- 용인공장경매
- 안산시공장경매
- 안산공장경매
- 충남공장
- 화성공장경매
- 충청공장경매
- 충북공장경매
- 공장경매전문
- 경기화성시공장
- 화성시공장경매
- Today
- Total
공장경매전문 엄미화대표
평택식품공장경매#(주)보부식품#경기식품공장경매#보부식품공장경매#평택시 팽성읍 근내리 공장경매 [공장경매전문 엄미화] 본문
평택식품공장경매#(주)보부식품#경기식품공장경매#보부식품공장경매#평택시 팽성읍 근내리 공장경매 [공장경매전문 엄미화]
공장경매 전문 엄미화 2019. 4. 2. 08:54공장경매전문 공인중개사 엄미화입니다.
오늘 소개해드릴 물건은 평택식품공장경매 물건으로
평택시 팽성읍 근내리 팽성원정 보건진료소 북측인근에 위치해 있으며
주위는 농경지, 소규모공장, 단독주택등이 소재해 있습니다.
남측및 서측으로 6M도로가 소재하며
소로2류 8~10M에 접해 있습니다.
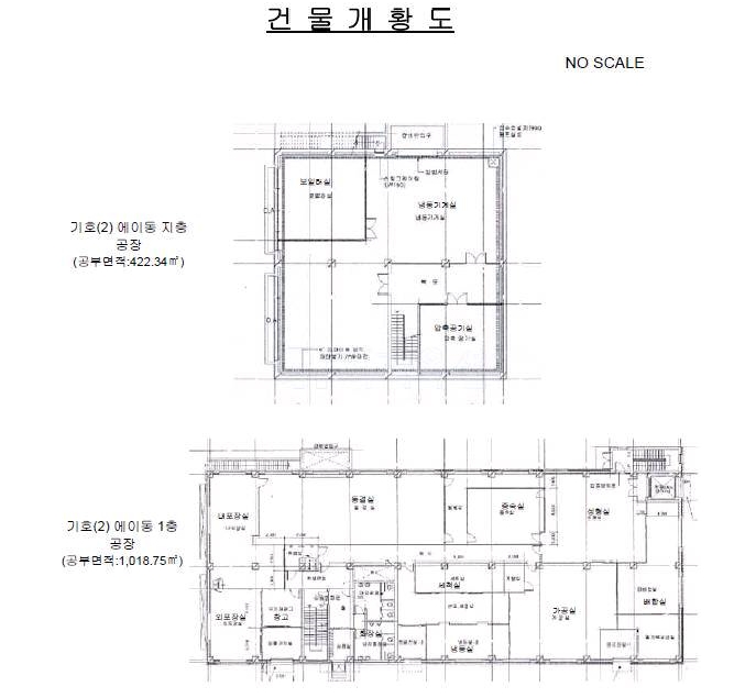
계획관리지역의 토지 1,542평에 건평 1,540평으로
2007년도 증축된 식품공장이며
(주)보부식품에서 소유하고 있으며
냉동,냉장창고, 폐수처리장,기타 기계기구등이 소재해 있습니다.
감정가는 8,065,038,250원으로 감정되었고 1회 유찰되어
최저가 5,645,527,000원으로 2019.4.22 2차 경매가 진행될예정입니다.
추가 유찰시 30% 떨어져서 한달뒤에 3차 경매가 진행됩니다.
기계기구의 감정가가 10억이 넘게 감정되었으므로
기계기구의 상태와 소재파악등의 사전조사후 입찰금액을 산정하셔야합니다.
자세한 사항은 전화 문의해주시기 바랍니다.
[공장경매 전문 엄미화 010-6503-7880]

<평택공장경매>
사건번호: 2018 타경 5513
감정가; 8,065,038,250
최저가: 5,645,527,000
매각기일: 2019.4.22
주소: 경기 평택시 성읍 근내리 101-2
[토지: 1,542평/ 건평: 1,540평]








지금까지 평택공장경매 물건을 추천해드렸습니다.
고객님의 소중한 재산 더 늘리고 보호하는데
제가 도움 드리고자 더욱더 최선을 다해야겠다고 다짐해봅니다.
허위광고와 불법컨설팅으로 인한 피해를 막고자
인터넷과 핸드폰 모바일로 경매물건을 무료검색할수 있는
사이트를 제공하고 있으니 많이 이용하시고
문의사항 있으시면 언제든 전화주세요.
경매무료사이트 http://www.goodac.net
경매 블로그 http://blog.naver.com/mycopysvc
소중한 인연 끝까지 이어나가겠습니다.
경매전문 공인중개사 엄미화
(☎010-6503-7880)