| 일 | 월 | 화 | 수 | 목 | 금 | 토 |
|---|---|---|---|---|---|---|
| 1 | 2 | 3 | ||||
| 4 | 5 | 6 | 7 | 8 | 9 | 10 |
| 11 | 12 | 13 | 14 | 15 | 16 | 17 |
| 18 | 19 | 20 | 21 | 22 | 23 | 24 |
| 25 | 26 | 27 | 28 | 29 | 30 | 31 |
- 공장경매전문
- 용인시공장경매
- 식품공장경매
- 평택시공장경매
- 화성공장임대
- 경기화성시공장
- 안성공장경매
- 파주시공장경매
- 안성시공장경매
- 화성시공장
- 충청공장경매
- 공장경매문의
- 광주시공장경매
- 안산시공장경매
- 화성공장
- 충남공장
- 지방공장경매
- 충북공장경매
- 경기공장경매
- 파주공장경매
- 화성공장매매
- 공장경매
- 공장경매전문업체
- 화성공장경매
- 평택공장경매
- 충남공장경매
- 화성시공장경매
- 안산공장경매
- 용인공장경매
- 경기화성공장
- Today
- Total
공장경매전문 엄미화대표
화성공장경매#향남제약일반산업단지#화성시 향남읍 구문천리 신성정밀 [토지: 527평/ 건평: 573평] 공장경매전문 엄미화 본문
화성공장경매#향남제약일반산업단지#화성시 향남읍 구문천리 신성정밀 [토지: 527평/ 건평: 573평] 공장경매전문 엄미화
공장경매 전문 엄미화 2019. 5. 12. 08:51
공장경매전문 공인중개사 엄미화입니다.
오늘 추천해드릴 물건은 사건번호 2018 타경 512487 화성공장경매 물건입니다.
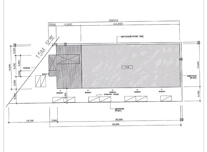
물건지 주소: 경기 화성시 향남읍 구문천리 930-9
[토지: 527평/ 건평: 573평]
오늘 소개해드릴 물건은 "화성공장경매"물건으로
화성시 향남읍 구문천리 향남제약일반산업단지내에 위치해 있으며
주위는 소규모 공장밀집지역입니다.
공업지역에 토지 527평에 건평 573평으로
2008년도에 4층공장으로 건축되었습니다.
1층공장 바닥면적 325평이며
2층부터는 74평입니다.
감정가는 2,249,373,310원으로 감정되었고 2019.5.22 1회 유찰시
최저가 1,574,561,000원으로 2019.6.26 2차 경매가 진행될예정입니다.
[공장경매전문 엄미화 010-6503-7880]

본 화성공장경매 물건의 자세한 상담을 원하시면 아래 전화번호로 연락 및 문자 주세요.
성실히 답변해드리겠습니다.
문의시 사건번호를 말씀해주시면 보다 신속한 상담을 도와드릴수 있습니다.
사건번호: 2018 타경 512487
경매전문 공인중개사 엄미화
010-6503-7880

<공장 입찰시 주의해야할점>
미납된 전기세 및 수도세등 공과금이 많이 밀려있지 않은지
입찰전에 조사후 입찰하셔야하며
현장조사시 산업폐기물등 쓰레기처리 비용 및 유치권협의비용등을
모두 감안하여 입찰금액을 정하셔야합니다.
정확한 분석은 전화주시면 자세히 상담해드리겠습니다.
공장경매 전문 중개사 엄미화
(010-6503-7880)








지금까지 화성공장경매 물건을 추천해드렸습니다.
고객님의 소중한 재산 더 늘리고 보호하는데
제가 도움 드리고자 더욱더 최선을 다해야겠다고 다짐해봅니다.
허위광고와 불법컨설팅으로 인한 피해를 막고자
인터넷과 핸드폰 모바일로 경매물건을 무료검색할수 있는
사이트를 제공하고 있으니 많이 이용하시고
문의사항 있으시면 언제든 전화주세요.
경매무료사이트 http://www.goodac.net
경매 블로그 http://blog.naver.com/mycopysvc
소중한 인연 끝까지 이어나가겠습니다.
경매전문 공인중개사 엄미화
(☎010-6503-7880)