| 일 | 월 | 화 | 수 | 목 | 금 | 토 |
|---|---|---|---|---|---|---|
| 1 | 2 | 3 | ||||
| 4 | 5 | 6 | 7 | 8 | 9 | 10 |
| 11 | 12 | 13 | 14 | 15 | 16 | 17 |
| 18 | 19 | 20 | 21 | 22 | 23 | 24 |
| 25 | 26 | 27 | 28 | 29 | 30 | 31 |
- 식품공장경매
- 평택공장경매
- 공장경매전문업체
- 용인시공장경매
- 경기화성공장
- 평택시공장경매
- 안산시공장경매
- 충북공장경매
- 화성시공장경매
- 충남공장
- 지방공장경매
- 공장경매전문
- 안성시공장경매
- 경기화성시공장
- 광주시공장경매
- 파주시공장경매
- 화성공장경매
- 충청공장경매
- 화성공장매매
- 안산공장경매
- 경기공장경매
- 충남공장경매
- 공장경매문의
- 용인공장경매
- 화성공장임대
- 화성시공장
- 공장경매
- 화성공장
- 안성공장경매
- 파주공장경매
- Today
- Total
공장경매전문 엄미화대표
화성공장경매#2015년신축공장#화성시 향남읍 구문천리 (주)에스에이치코리아#화성향남공장경매 <2018 타경 508501> 본문
화성공장경매#2015년신축공장#화성시 향남읍 구문천리 (주)에스에이치코리아#화성향남공장경매 <2018 타경 508501>
공장경매 전문 엄미화 2019. 5. 10. 21:02공장경매전문 공인중개사 엄미화입니다.
오늘 추천해드릴 물건은 사건번호 2018 타경 508501 화성공장경매 물건입니다.
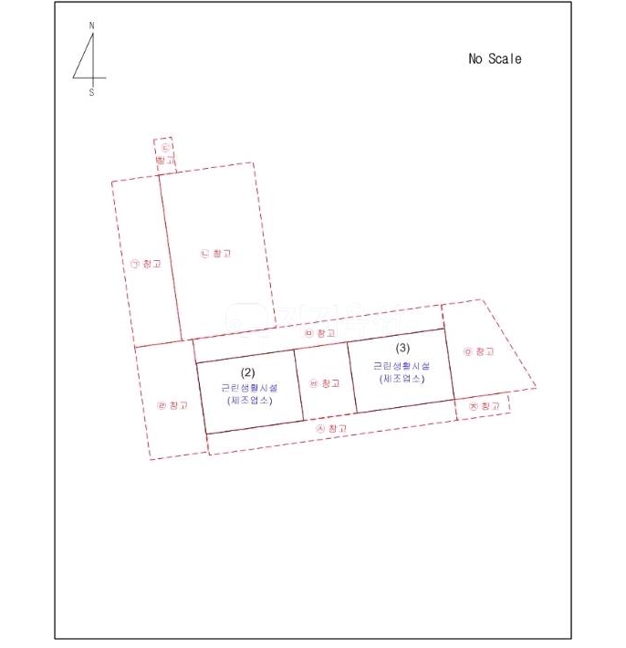
물건지 주소: 경기 화성시 향남읍 구문천리 875-58 1동,2동
[토지: 1,711평/ 건평: 699평]
오늘 소개해드릴 물건은 "화성공장경매"물건으로
화성시 향남읍 구문천리 화성발안산업단지 남서측인근에 위치해 있으며
인근에는 소규모공장지대, 창고, 농경지가 혼재되어 있습니다.
남측및 동측으로 약 6m 도로에 접해 있고
토지 1,711평에 건평 699평으로
2015년도에 1층 공장 2개동을 신축되었습니다.
감정가는 2,512,067,500원으로 감정되었고 2019.5.16 1회 유찰시
최저가 1,758,447,000원으로 2019.6.20 2차 경매가 진행될예정입니다.
[공장경매전문 엄미화 010-6503-7880]

본 화성공장경매 물건의 자세한 상담을 원하시면 아래 전화번호로 연락 및 문자 주세요.
성실히 답변해드리겠습니다.
문의시 사건번호를 말씀해주시면 보다 신속한 상담을 도와드릴수 있습니다.
사건번호: 2018 타경 508501
010-6503-7880

<공장 입찰시 주의해야할점>
미납된 전기세 및 수도세등 공과금이 많이 밀려있지 않은지
입찰전에 조사후 입찰하셔야하며
현장조사시 산업폐기물등 쓰레기처리 비용 및 유치권협의비용등을
모두 감안하여 입찰금액을 정하셔야합니다.
정확한 분석은 전화주시면 자세히 상담해드리겠습니다.
공장경매 전문 중개사 엄미화
(010-6503-7880)








지금까지 화성공장경매 물건을 추천해드렸습니다.
고객님의 소중한 재산 더 늘리고 보호하는데
제가 도움 드리고자 더욱더 최선을 다해야겠다고 다짐해봅니다.
허위광고와 불법컨설팅으로 인한 피해를 막고자
인터넷과 핸드폰 모바일로 경매물건을 무료검색할수 있는
사이트를 제공하고 있으니 많이 이용하시고
문의사항 있으시면 언제든 전화주세요.
경매무료사이트 http://www.goodac.net
경매 블로그 http://blog.naver.com/mycopysvc
소중한 인연 끝까지 이어나가겠습니다.
경매전문 공인중개사 엄미화
(☎010-6503-7880)
'공장경매 > 경기권' 카테고리의 다른 글
| 화성공장경매#향남제약일반산업단지#화성시 향남읍 구문천리 신성정밀 [토지: 527평/ 건평: 573평] 공장경매전문 엄미화 (0) | 2019.05.12 |
|---|---|
| 화성토지경매#화성공장부지경매#화성공장지을땅경매 <2018 타경 21264> (0) | 2019.05.11 |
| 화성공장부지경매#화성 향남읍 공장지을땅#발안 일반산업단지 인근#6~8m 도로접 토지경매 <2018 타경 6227> (0) | 2019.05.10 |
| 광주공장경매#경기 광주시 목동 공장경매#계획관리지역: 517평/ 건평: 381평 *공장경매전문 엄미화 <2018 타경 5135[1]> (0) | 2019.05.08 |
| 화성제조장경매#화성제조업소경매#화성도로변공장#화성공장경매#화성시 정남면 신리 <공장경매전문 엄미화 2018 타경 519174> (0) | 2019.05.06 |