| 일 | 월 | 화 | 수 | 목 | 금 | 토 |
|---|---|---|---|---|---|---|
| 1 | 2 | 3 | ||||
| 4 | 5 | 6 | 7 | 8 | 9 | 10 |
| 11 | 12 | 13 | 14 | 15 | 16 | 17 |
| 18 | 19 | 20 | 21 | 22 | 23 | 24 |
| 25 | 26 | 27 | 28 | 29 | 30 | 31 |
- 광주시공장경매
- 화성공장경매
- 화성시공장경매
- 지방공장경매
- 파주공장경매
- 평택공장경매
- 안성공장경매
- 화성공장임대
- 충남공장경매
- 파주시공장경매
- 경기공장경매
- 화성공장매매
- 공장경매전문
- 화성공장
- 안산시공장경매
- 충청공장경매
- 공장경매전문업체
- 용인공장경매
- 경기화성시공장
- 화성시공장
- 안산공장경매
- 공장경매문의
- 공장경매
- 용인시공장경매
- 충남공장
- 식품공장경매
- 안성시공장경매
- 평택시공장경매
- 충북공장경매
- 경기화성공장
- Today
- Total
공장경매전문 엄미화대표
안성식품공장경매-안성시 원곡면 식품제조&가공업체 경매물건 본문
오늘 소개할 경매 물건은 경기도 안성시
원곡면 성은리에 위치한 공장입니다.
해당 공장은 토지, 건물, 기계기구까지
포함된 일괄 경매 물건으로,
총 감정평가액은 37억 3,254만 원에
달하는 대형 물건입니다.
법원 경매 사건번호는 2023타경2747이며
수원지방법원 평택지원에서 진행 중입니다.

공장 위치 및 주위환경
본 공장은 "산직마을회관" 북서측에 인접한 위치로, 인근에는 소규모 공장, 농경지, 임야 등이 혼재한 전형적인 지방 공업지역입니다. 대중교통 접근성은 보통 수준이며, 차량 진입은 원활한 편입니다.

사건번호: 2023 타경 2747
소재지: 경기 안성시 원곡면 성은리 264
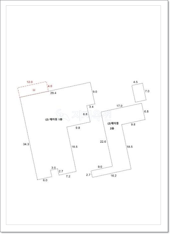
[토지: 1,847평 / 건평: 1,060평]
감정가: 3,732,548,940
최저가: 2,612,784,000
매각기일: 2025.6.23
수원지방법원 평택지원1계
안성시공장 개요
- 토지: 총 3필지, 6,108㎡ (약 1,847평)
- 건물: 공장, 기숙사, 창고 포함 2,981㎡ (약 902평)
- 기계기구: 총 27점, 대부분 식품가공 설비
- 제시외 건물: 차양, 창고, 폐수처리시설 등
토지와 건물은 각각 별도의 지번을 가지고
있으며, 일부는 현황상 도로로 이용되고
있어서 감정 시 감액이 반영되었습니다.

건물 및 설비
주요 건물은 철근콘크리트 및 일반철골조로 구성되어 있으며, 공장동, 기숙사동, 창고동으로 분리되어 있습니다. 건물 내에는 급배수 및 위생설비가 갖추어져 있으며, 일부 건물은 증축 이력이 있어 건축물대장 기준으로 감정되었습니다.
기계기구는 대부분 식품가공과 관련된 장비들로 구성되어 있으며, 기계 설비 감정가는 5,761만 원입니다. 다만 일부 기계는 소재 불명 또는 철거 보관 중으로 확인되니 경매 참여 시 꼼꼼히 확인해야 합니다.

감정평가액 세부내역
토지: 24억 4,218만 원
건물: 11억 7,465만 원
제시외건물:5,810만 원
기계기구:5,810만 원
감정가총합:37억 3,254만 원
토지는 공시지가기준법과 거래사례비교법을 병행하여 평가되었고, 건물과 기계기구는 원가법을 기준으로 감정되었습니다.

입찰 시 유의사항
- 도로 포함 여부: 일부 토지(기호6)는 현황상 도로로 이용 중입니다. 실사용 및 점유상황을 반드시 확인해야 합니다.
- 면적 불일치: 등기사항과 건축물대장의 면적이 상이한 부분이 있으므로 사전에 확인이 필요합니다.
- 공장 가동 여부: 현재 공장은 가동 중지 상태로, 기계 작동 여부 확인이 어렵습니다.
- 감정일자: 2023년 7월 기준이므로, 시장 상황 변화에 따른 가격 변동을 감안하세요.




안성시 공장경매 물건 총평
이번 경매 물건은 대지 규모와 건물 면적,
기계 설비 등을 고려할 때 식품 제조업 또는 기타 가공업체의 이전·확장에 적합한 물건입니다. 다만 일부 물건의 불확실성(도로 포함, 기계 미확인 등)을 충분히 고려하여 철저한 실사를 권장드립니다.
더 자세한 권리분석이나 입찰 전략이 필요하신 분들은 댓글 또는 문의를 통해 상담해 주세요.
경매 성공의 핵심은 ‘철저한 준비’입니다!
'공장경매 > 경기권' 카테고리의 다른 글
| 화성시공장경매 화성시 우정읍 철강회사 주곡산업단지내 소재! (1) | 2025.06.19 |
|---|---|
| 경기광주공장경매-곤지암역 인근 반값경매 추천! (1) | 2025.06.17 |
| 안산공장경매 시화공단내 보기드문 경매물건 추천! (1) | 2025.06.14 |
| 평택시공장경매-추팔일반산업단지내 공장 크래인,수변전설비 포함. (0) | 2025.06.13 |
| [파주식품공장경매] 냉동창고 + 식육포장설비 완비된 파주공장 경매정보 (4) | 2025.06.12 |




